LE MOJAVE

  • Communities
  • Montreal
  • LE MOJAVE
Montreal

Description

NOW LEASING May 1, 2023

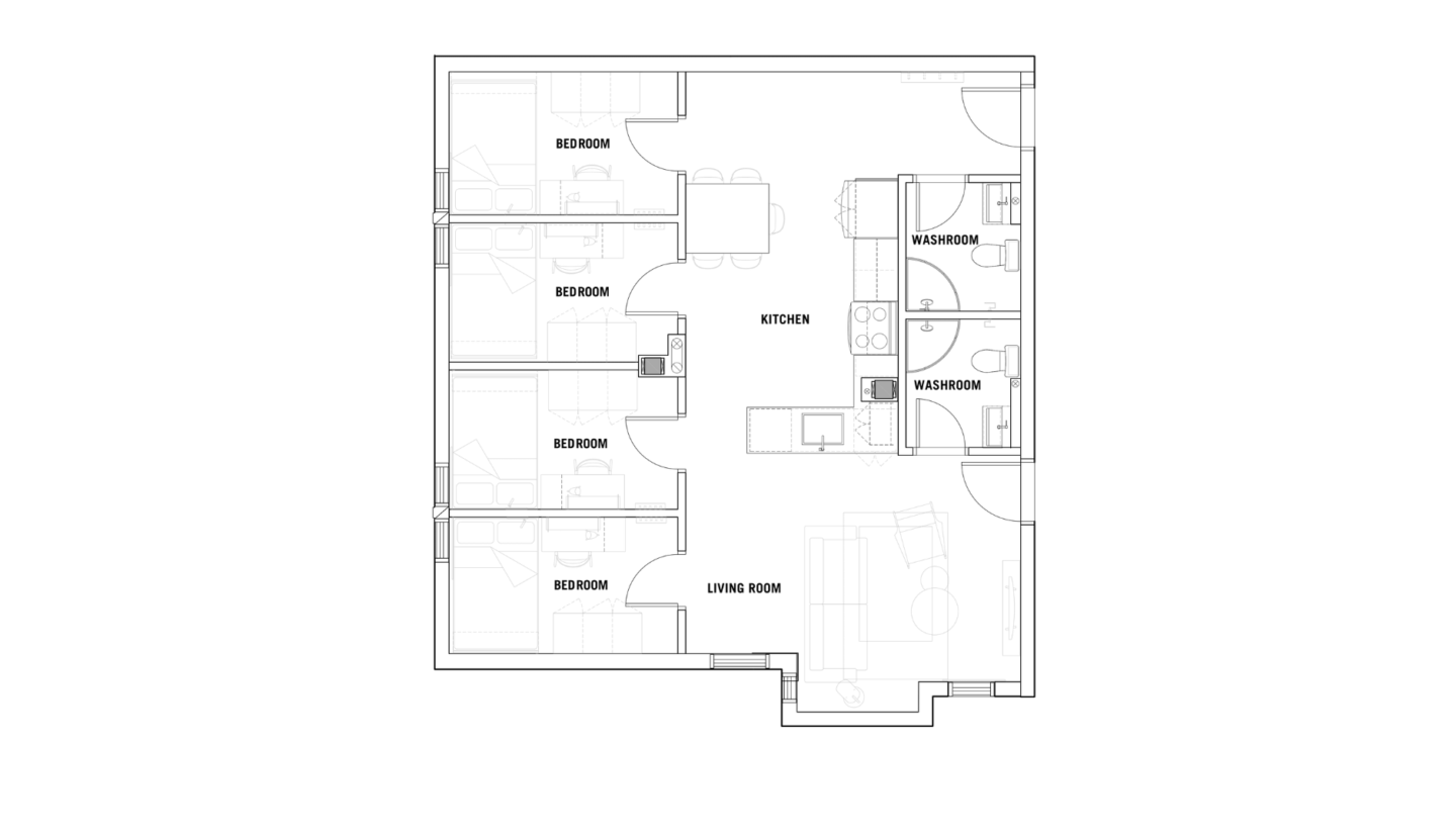
LE MOJAVE houses up to 28 students and help them make the most of their time at university and in Halifax. In the heart of the Plateau, it offers students fully-furnished spaces that are specifically designed for university living. Our goal is to allow students to make the most of their experience at school, and to provide them the housing, tools, and resources to foster exploration, growth, and quality of life.

OUR UNITS

Each fully furnished unit comes complete with cozy and trendy furniture, a kitchen fully equipped with appliances, artwork, and custom shelving.

Sustainable Living

Our decision to fully-furnish our units reflects our stance on sustainable living; by providing high-quality furniture, we all avoid an accumulation of pressed board pieces on the curb at the end of the lease term as students move out and move on. We hate seeing old furniture end up in landfills, so we do our best to reduce waste through our sustainability initiatives. This way the furniture is designed alongside the spaces themselves in harmony.

COMMUNITY FIRST

As a Certified B-Corporation, our buildings meet the highest standards of verified social and environmental performance, public transparency and legal accountability to balance profit and purpose. Along with our focus on high design and sustainability, we are also committed to local charitable initiatives including primary schools, community centres and integration services for recently arrived immigrants.

We don’t just manage buildings, we build communities within and around our spaces 🙌

AMENITIES

🧺 Laundry onsite – coin operated ($)

🪑 Fully Furnished

📓 Study nook in every bedroom

🍳  All major kitchen appliances (extra large fridge, stove, microwave, and dishwasher)

🧻 Lots of extra storage

LAND ACKNOWLEDGMENT

We respectfully acknowledge that we are located in Tiohtià:ke on unceded Indigenous lands, historically known as a site of meeting and exchange amongst many First Nations. The Kanien’kehà:ka Nation is recognized as the traditional custodians of the lands and waters on which we operate.

Details

LOCATION

LE MOJAVE View building 3476 Rue St. Dominique Montreal QC H2X 2X4 Open in Google maps
  • McGill University
    • 13
    • 5
    • 5
    • 12
  • Concordia University
    • 25
    • 9
    • 14
    • 9

What's included

  • 2 bathrooms
  • Kitchen appliances
  • Fully-furnished

Discover the Neighbourhood

Apartments in the Building
PALAY
Walk Distance: 10 min to Concordia University Lease: 12 months Furnished
PALAY
Walk Distance: 10 min to Concordia University Lease: 12 months Furnished

Frequently Asked Questions

Find your Apartment Now!